1.1 熱媒爐
熱媒爐具有低壓高溫的工作特性,其工作壓力一般低于1MPa,供熱溫度可達液相350℃或汽相400℃。凡是需要均勻穩定地加熱,且不允許火焰直接加熱,而工藝加熱溫度在150℃-380℃之間的各種生產場合,均可采用熱媒爐供熱。某些生活用熱也可由熱媒爐供給。
其工作原理為:燃料通過燃燒器在爐膛內燃燒產生熱量,熱量通過爐管以對流和輻射的形式傳熱給導熱油,導熱油在循環泵的驅動下通過加熱爐出口進入換熱器管程內將走殼程的原油加熱后回到循環泵,通過加熱爐再吸收熱量,如此周而復始,以導熱油為熱載體(或稱熱媒)實現熱量的連續傳遞。
熱媒爐工藝流程如圖1-13所示。

1.2 烴類蒸氣轉化爐
以烴類為原料,用蒸汽轉化法生產合成氨原料氣和氫氣,在合成氨、煉油、石油化工、冶金等工業部門具有特定的地位。煉油廠的制氫爐、甲醇廠的制氫轉化爐和合成氨廠的一段轉化爐等都屬于烴類蒸汽轉化爐。
烴類蒸汽轉化爐的工作條件比較苛刻,使用的都是耐高溫的含高鎳鉻的合金材料,因此在爐子設計時要求合理使用爐管及盡量降低對爐管的要求,防止局部過熱,使周向和軸向溫度分布均勻。注意設計時所選用的爐型、原料、催化劑和操作條件是一個整體。
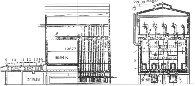
圖1-14 轉化爐結構示意圖
1-出口總管 2-保溫箱 3-出口豬尾管 4-懸吊爐頂 5-懸掛爐墻 6-絕熱耐火墻 7-煙道 8-燒嘴 9-天然氣預熱器 10-廢熱鍋爐 11-蒸汽過熱器 12-天然氣蒸汽加熱器 13-工藝空氣加熱器 14-廢熱鍋爐保護管
烴類蒸汽轉化是伴有傳熱、傳質、動量傳遞和復雜化學反應的綜合過程,要求傳熱與反應必須相適應,對于這樣的復雜反應,能夠控制其反應的進程是關鍵。
————石化加熱爐產品